Quadrilocale in vendita

Zola Predosa, Via Della Fornace
€ 369.000
4 locali 4 locali
113 Mq 113 Mq
2 bagni 2 bagni

Quadrilocale in vendita

Zola Predosa, Via Della Fornace

Descrizione annuncio

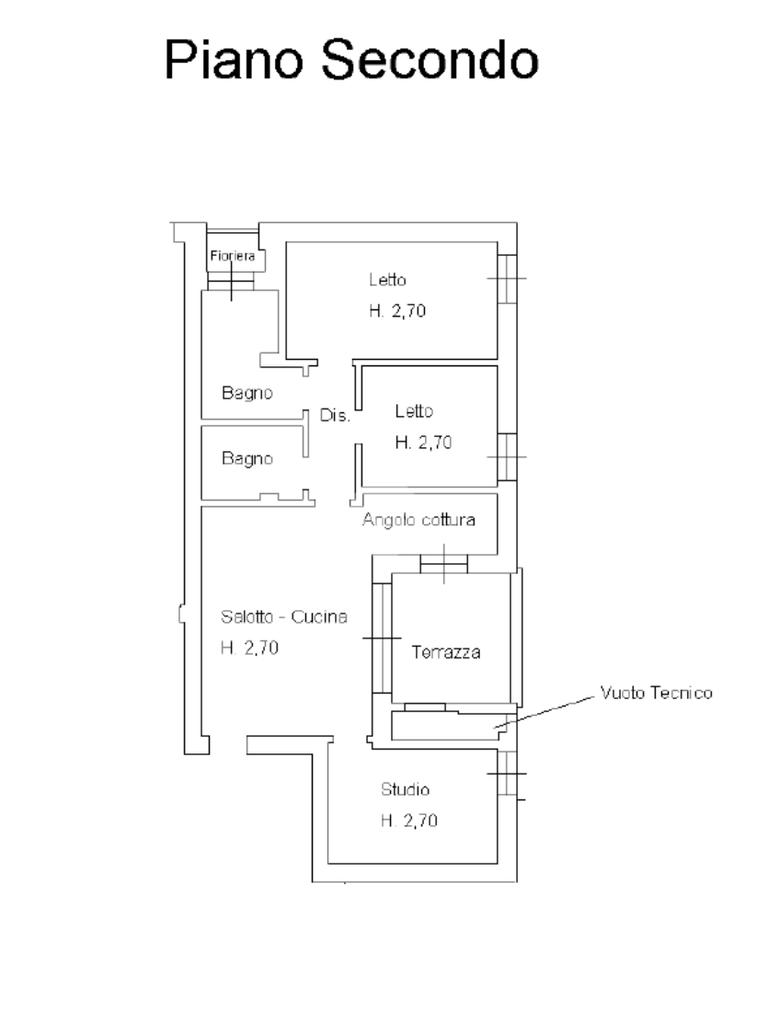
ZOLA PREDOSA: All'interno del comparto C4 di Zola Predosa, zona residenziale di recente costruzione, servita e tranquilla, proponiamo spazioso quadrilocale al secondo piano, comodamente servito da ascensore.

Ingresso direttamente sulla zona living, in cui soggiorno e angolo cottura, parzialmente separati, convivono armoniosamente, terrazza abitabile di oltre 9 mq, disimpegno zona notte, due camere da letto, uno studio e due bagni. Completa la proprietà una spaziosa autorimessa al piano interrato. Il riscaldamento è di tipo centralizzato con teleriscaldamento e le spese di gestione condominiali risultano contenute.

Il contesto residenziale, la zona esclusiva, la disposizione funzionale degli ambienti, la metratura generosa, la cura nella scelta delle finiture e degli arredi interni, la suggestiva terrazza abitabile, sono solo alcune delle principali qualità dell'immobile.

Per ulteriori informazioni, visionare l'immobile e scoprire tutte le sue peculiarità siamo disponibili dalle 09:00 alle 13:00 e dalle 15:00 alle 20:00 presso la nostra sede in Via Risorgimento 109 A/B a Zola Predosa. Per fissare una visita all'immobile ci contatti al 3392980512.

Mostra tutto

Nelle vicinanze

Trasporto pubblico Trasporto pubblico
Zola Chiesa
Zola Chiesa
100 m
Zola Centro
Zola Centro
730 m
Zola Predosa
Zola Predosa
100 m
Zola Predosa Chiesa
Zola Predosa Chiesa
410 m
Pilastrino
Pilastrino
1,8 Km
Ricariche auto elettriche Ricariche auto elettriche
Municipio di Zola Predosa BO
780 m
Scuole Scuole
Scuola media Francesco Francia
810 m
Scuole
2,3 Km
Farmacia Farmacia
Faemacia Legnani
1,3 Km
Supermercati Supermercati
Supermercato Dimeglio
160 m
Coop
250 m
iN's Mercato
1,7 Km
DPiù
2,7 Km
Bar Bar
Bar
1,2 Km
Stefy
2,1 Km
B+ Cafè
2,3 Km
Ristoranti Ristoranti
Ristoranti
250 m
La Baracca
580 m
La Mandria
650 m
Accademia der Cacio e Pepe
930 m
LA FORCHETTA CURIOSA
1,4 Km
Mostra tutto

Caratteristiche

Rif.:
61117293
Piano:
2 di 4 con ascensore (Piano alto)
Box:
1
Terrazzi:
1
Camere da letto:
2
Arredamento:
Parziale
Mostra tutto
Prezzo Prezzo
€ 369.000
Rata mutuo Rata mutuo
€ 1.706 / mese
Spese annue Spese annue
€ 2.400
Proponi il tuo prezzoProponi il tuo prezzo

Classe Energetica

C
C
C
C
C
C
C
C
C
EP globale non rinnovabile:
80.00 kW h/m² anno
EP globale rinnovabile:
80.00 kW h/m² anno
EP invernale del fabbricato:
EP estiva del fabbricato:
Anno di costruzione:
2008
Riscaldamento:
Centralizzato
Tipo impianto:
A radiatori
Tipo alimentazione:
Metano

Ti interessa visionare l'immobile?

Fissa un appuntamento  Fissa un appuntamento

Richiedi informazioni

* Questi campi sono obbligatori

Calcola il tuo mutuo

Semplice e senza impegno
Anticipo

( % )
Mutuo

( % )

pochi semplici passi

inserisci i tuoi dati
Questionario completato
Grazie per aver richiesto un appuntamento senza impegno con un nostro Consulente del Credito e Assicurativo.

Hai inserito correttamente tutti i dati necessari e a breve riceverai una e-mail con un link da convalidare per inviare i tuoi dati.
Affiliato
Tecno Zola Srl
Via Risorgimento, 109/A-B 40069 Zola Predosa (BO)

Il nostro staff


  • Niccolò Spaccia
    Affiliato

  • Lorenzo Capuzzi
    Affiliato
Via Risorgimento, 109/A-B 40069 Zola Predosa (BO)
Zona: Zola Predosa-Riale-Ponte Ronca-San Martino in Casola
Mostra su mappa
Orari: da lunedì al venerdì dalle 9:00 - 13:00 e 15:00 - 20:00 sabato dalle 9:00 - 13:00
Affiliato
Tecno Zola Srl
Via Risorgimento, 109/A-B 40069 Zola Predosa (BO)

2025 Tecnocasa Franchising S.p.A. - P. IVA 08365160152 - Via Monte Bianco 60/A 20089 Rozzano (MI). Ogni agenzia ha un proprio titolare ed è autonoma. Privacy policy | Policy utilizzo | Cookie policy