Trilocale in vendita

Zola Predosa, Via Angelo Masini
€ 290.000
3 locali 3 locali
110 Mq 110 Mq
1 bagno 1 bagno

Trilocale in vendita

Zola Predosa, Via Angelo Masini

Descrizione annuncio

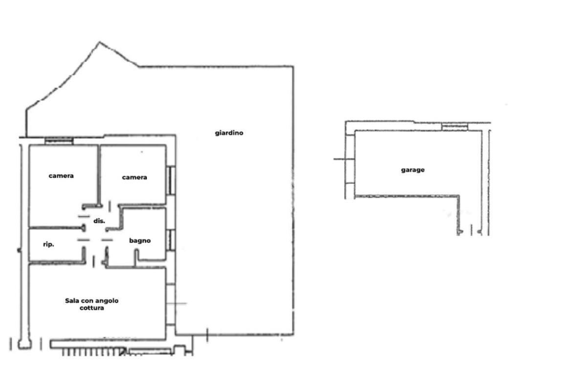
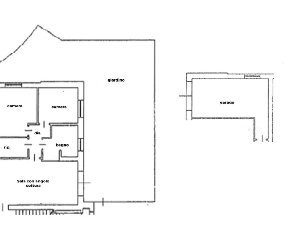
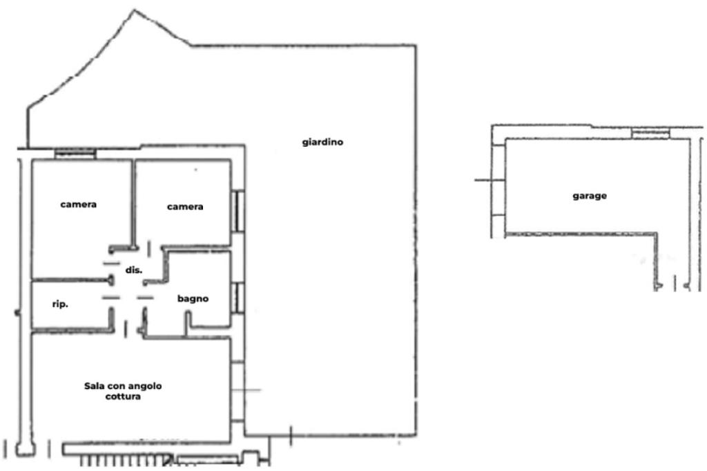
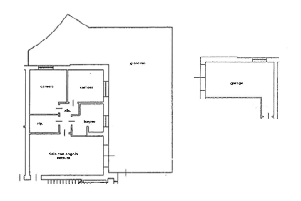
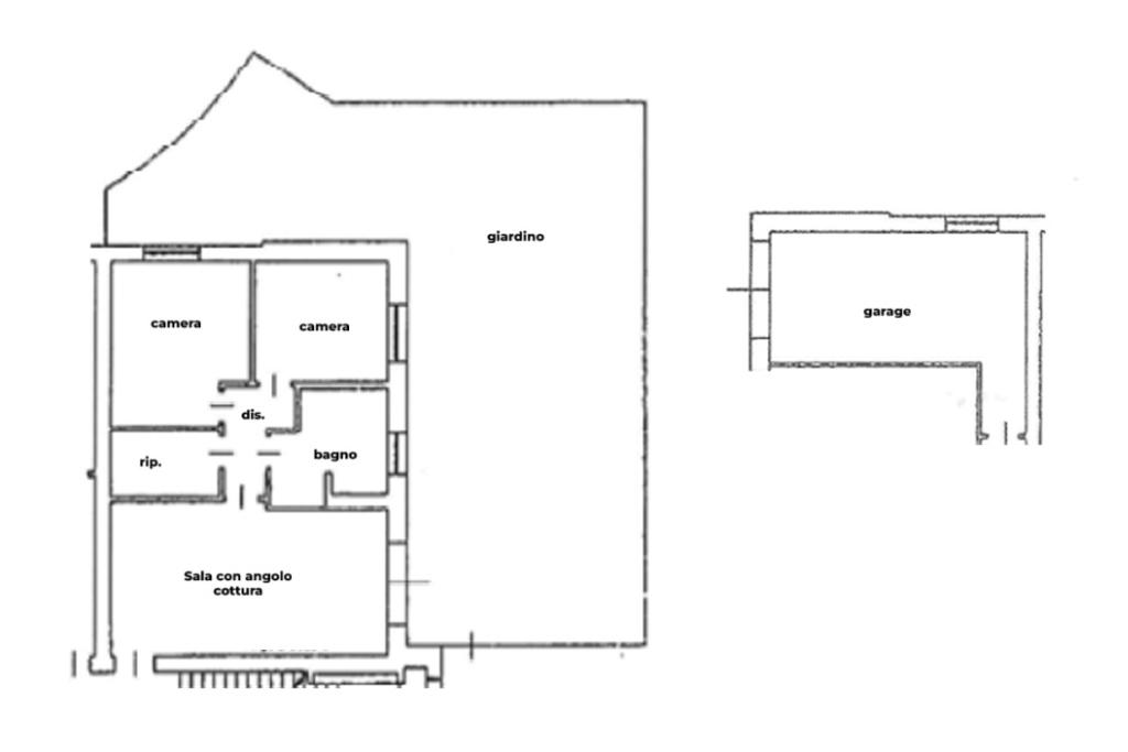
ZOLA PREDOSA: All'interno di un'elegante corte di recente realizzazione (2012), in zona esclusivamente residenziale ma comunque comoda a tutti i servizi della zona (2km dal casello est di Bologna, 7km dall'aeroporto 'Guglielmo Marconi') e strategicamente collegata in direzione Bologna, proponiamo luminoso appartamento al piano terra con giardino privato.

Attraversando la corte condominiale si arriva alla proprietà; ingresso direttamente sulla zona giorno in cui area pranzo e living convivono in perfetta continuità, accesso al curato giardino privato (con possibilità di entrata indipendente), disimpegno zona notte, due camere da letto, ampio bagno (con vasca idromassaggio e doccia) e ripostiglio/lavanderia. Completa la proprietà uno spazioso garage al piano terra di oltre 30 mq. Il riscaldamento all'interno dell'abitazione è di tipo centralizzato, a pavimento e le spese di gestione condominiale risultano contenute.

Il contesto tranquillo e verdeggiante, il complesso di recente realizzazione, la disposizione funzionale degli spazi interni, l'assenza di spazi inutilizzati, la meticolosità nella scelta delle finiture, l'ottima esposizione, sono solo alcune delle qualità che vi faranno innamorare della soluzione.

Per ulteriori informazioni, visionare l'immobile e scoprirne tutti i dettagli siamo disponibili dalle 09:00 alle 13:00 e dalle 15:00 alle 20:00 presso la nostra sede in Via Risorgimento n°109 A/B a Zola Predosa. Per fissare una visita all'immobile ci contatti al 3392980512.

Mostra tutto

Nelle vicinanze

Trasporto pubblico Trasporto pubblico
Lavino Di Mezzo
Lavino Di Mezzo
310 m
Lavino Di M. Ponte
Lavino Di M. Ponte
400 m
Scuole Scuole
Scuole
380 m
Farmacia Farmacia
Lavino di Mezzo
360 m
Farmacia del Villaggio Panigale
3,0 Km
Supermercati Supermercati
Conad
2,8 Km
Outlet Gelato G7
3,0 Km
Negozi Negozi
DICO
2,7 Km
Fashion Outlet
2,8 Km
Bar Bar
Bar Pallavicini
2,4 Km
Il Cremino
2,8 Km
Ristoranti Ristoranti
Ballarini
360 m
Ambasciata Salentina
1,4 Km
Ristoranti
1,6 Km
Amedea
1,7 Km
La Cucina sul Lago
2,8 Km
Mostra tutto

Caratteristiche

Rif.:
61146806
Piano:
Terra con giardino di 3 con ascensore
Totale piani:
3
Box:
1
Camere da letto:
2
Arredamento:
Parziale
Mostra tutto
Prezzo Prezzo
€ 290.000
Rata mutuo Rata mutuo
€ 1.371 / mese
Spese annue Spese annue
€ 1.800
Proponi il tuo prezzoProponi il tuo prezzo

Classe Energetica

D
D
D
D
D
D
D
D
D
EP globale non rinnovabile:
71.83 kW h/m² anno
EP globale rinnovabile:
71.83 kW h/m² anno
EP invernale del fabbricato:
EP estiva del fabbricato:
Anno di costruzione:
2012
Riscaldamento:
Centralizzato
Tipo impianto:
A pavimento
Tipo alimentazione:
Metano

Ti interessa visionare l'immobile?

Fissa un appuntamento  Fissa un appuntamento

Richiedi informazioni

Clicca su Leggi per aprire l'informativa
* Questi campi sono obbligatori

Calcola il tuo mutuo

Semplice e senza impegno
Anticipo

( % )
Mutuo

( % )

pochi semplici passi

inserisci i tuoi dati
Questionario completato
Grazie per aver richiesto un appuntamento senza impegno con un nostro Consulente del Credito e Assicurativo.

Hai inserito correttamente tutti i dati necessari e a breve riceverai una e-mail con un link da convalidare per inviare i tuoi dati.
Affiliato
Tecno Zola Srl
Via Risorgimento, 109/A-B 40069 Zola Predosa (BO)

Il nostro staff


  • Niccolò Spaccia
    Affiliato

  • Lorenzo Capuzzi
    Affiliato
Via Risorgimento, 109/A-B 40069 Zola Predosa (BO)
Zona: Zola Predosa-Riale-Ponte Ronca-San Martino in Casola
Mostra su mappa
Orari: da lunedì al venerdì dalle 9:00 - 13:00 e 15:00 - 20:00 sabato dalle 9:00 - 13:00
Affiliato
Tecno Zola Srl
Via Risorgimento, 109/A-B 40069 Zola Predosa (BO)

2026 Tecnocasa Franchising S.p.A. - P. IVA 08365160152 - Via Monte Bianco 60/A 20089 Rozzano (MI). Ogni agenzia ha un proprio titolare ed è autonoma. Privacy policy | Policy utilizzo | Cookie policy