Bilocale in vendita

Zola Predosa, Via Brigata Bolero
€ 142.000
2 locali 2 locali
56 Mq 56 Mq
1 bagno 1 bagno

Bilocale in vendita

Zola Predosa, Via Brigata Bolero

Descrizione annuncio

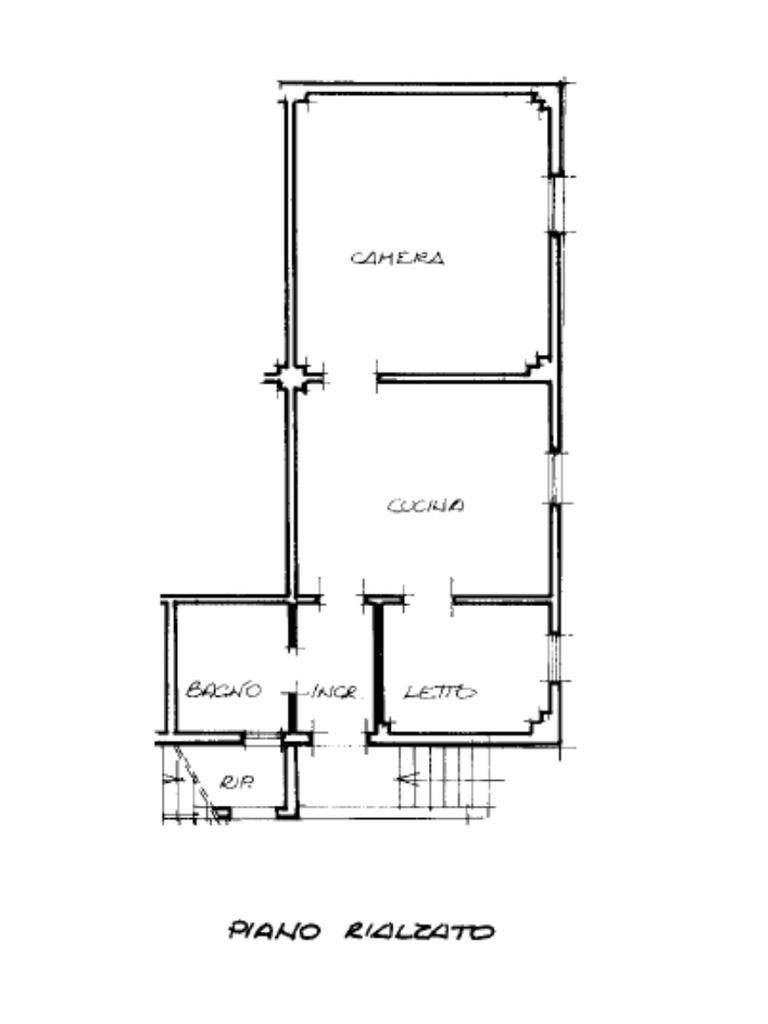
ZOLA PREDOSA: In pieno centro al paese, in zona residenziale, tranquilla ma comoda a tutti i servizi del comune, in prossimità delle scuole e strategicamente collegata all'asse attrezzato in direzione Bologna, proponiamo bilocale al piano rialzato in contesto bifamiliare con accesso indipendente.

Ingresso arredabile, zona giorno con tinello e cucinotto, spaziosa camera da letto matrimoniale e bagno. Completano la proprietà un ripostiglio al piano terra e due cantine al piano seminterrato. Il riscaldamento all'interno dell'abitazione è alimentato da caldaia autonoma e non ci sono spese di gestione condominiali.

La posizione centrale, il contesto abitativo di due sole unità, l'ingresso indipendente alla proprietà, la disposizione lineare degli ambienti, la possibilità di personalizzazione in fase di ristrutturazione, la presenza del giardino condominiale esterno che circonda l'appartamento, sono tra le principali qualità dell'immobile.

Per ulteriori informazioni, visionare l'immobile e scoprire tutte le sue peculiarità siamo disponibili dalle 09:00 alle 13:00 e dalle 15:00 alle 20:00 presso la nostra sede in Via Risorgimento n°109 A/B a Zola Predosa. Per fissare una visita all'immobile ci contatti al 3466173196.

Mostra tutto

Nelle vicinanze

Trasporto pubblico Trasporto pubblico
Zola Chiesa
Zola Chiesa
120 m
Zola Centro
Zola Centro
730 m
Zola Predosa
Zola Predosa
120 m
Zola Predosa Chiesa
Zola Predosa Chiesa
380 m
Pilastrino
Pilastrino
1,7 Km
Ricariche auto elettriche Ricariche auto elettriche
Municipio di Zola Predosa BO
780 m
Scuole Scuole
Scuola media Francesco Francia
650 m
Scuole
2,3 Km
Farmacia Farmacia
Faemacia Legnani
1,2 Km
Supermercati Supermercati
Supermercato Dimeglio
110 m
Coop
280 m
iN's Mercato
1,6 Km
DPiù
2,7 Km
Bar Bar
Bar
1,1 Km
Stefy
1,9 Km
B+ Cafè
2,3 Km
Bar Sport
2,9 Km
Gideon
3,0 Km
Ristoranti Ristoranti
Ristoranti
170 m
La Mandria
630 m
La Baracca
640 m
Accademia der Cacio e Pepe
760 m
LA FORCHETTA CURIOSA
1,4 Km
Mostra tutto

Caratteristiche

Rif.:
61159838
Piano:
Rialzato di 2
Totale piani:
2
Camere da letto:
1
Arredamento:
Parziale
Condizionamento:
Autonomo
Mostra tutto
Prezzo Prezzo
€ 142.000
Rata mutuo Rata mutuo
€ 669 / mese
Spese annue Spese annue
€ 0
Proponi il tuo prezzoProponi il tuo prezzo

Classe Energetica

G
G
G
G
G
G
G
G
G
EP globale non rinnovabile:
216.99 kW h/m² anno
EP globale rinnovabile:
216.99 kW h/m² anno
EP invernale del fabbricato:
EP estiva del fabbricato:
Anno di costruzione:
1960
Riscaldamento:
Autonomo
Tipo impianto:
A radiatori
Tipo alimentazione:
Metano

Ti interessa visionare l'immobile?

Fissa un appuntamento  Fissa un appuntamento

Richiedi informazioni

Clicca su Leggi per aprire l'informativa
* Questi campi sono obbligatori

Calcola il tuo mutuo

Semplice e senza impegno
Anticipo

( % )
Mutuo

( % )

pochi semplici passi

inserisci i tuoi dati
Questionario completato
Grazie per aver richiesto un appuntamento senza impegno con un nostro Consulente del Credito e Assicurativo.

Hai inserito correttamente tutti i dati necessari e a breve riceverai una e-mail con un link da convalidare per inviare i tuoi dati.
Affiliato
Tecno Zola Srl
Via Risorgimento, 109/A-B 40069 Zola Predosa (BO)

Il nostro staff


  • Niccolò Spaccia
    Affiliato

  • Lorenzo Capuzzi
    Affiliato
Via Risorgimento, 109/A-B 40069 Zola Predosa (BO)
Zona: Zola Predosa-Riale-Ponte Ronca-San Martino in Casola
Mostra su mappa
Orari: da lunedì al venerdì dalle 9:00 - 13:00 e 15:00 - 20:00 sabato dalle 9:00 - 13:00
Affiliato
Tecno Zola Srl
Via Risorgimento, 109/A-B 40069 Zola Predosa (BO)

2026 Tecnocasa Franchising S.p.A. - P. IVA 08365160152 - Via Monte Bianco 60/A 20089 Rozzano (MI). Ogni agenzia ha un proprio titolare ed è autonoma. Privacy policy | Policy utilizzo | Cookie policy