Villa a schiera in vendita

Zola Predosa, Via Giuseppe Romita
€ 365.000
4 locali 4 locali
135 Mq 135 Mq
2 bagni 2 bagni

Villa a schiera in vendita

Zola Predosa, Via Giuseppe Romita

Descrizione annuncio

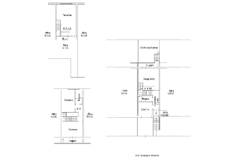
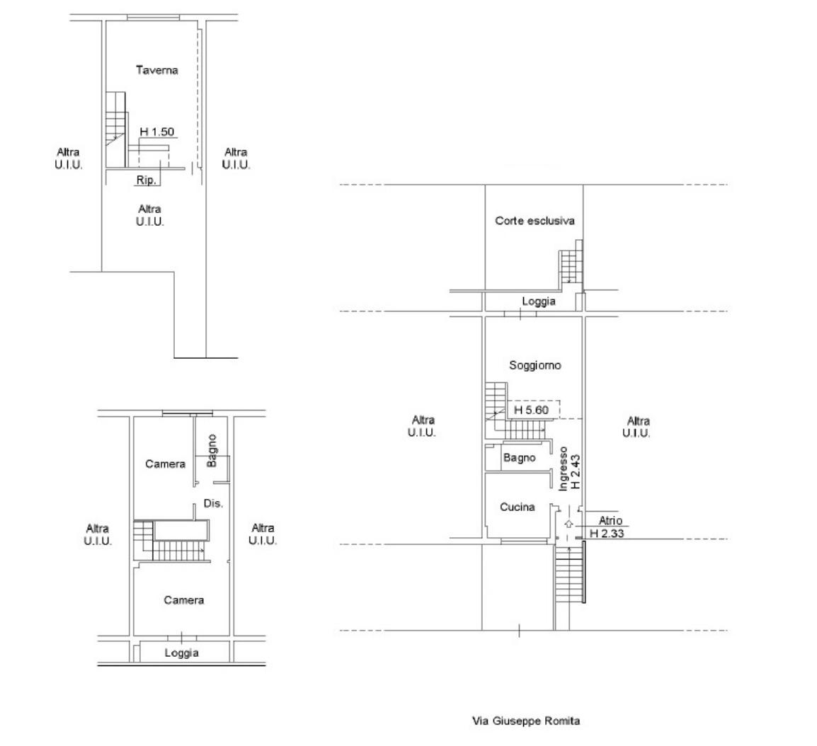
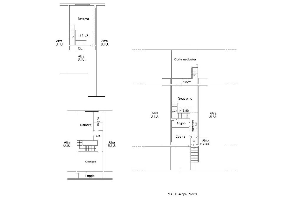
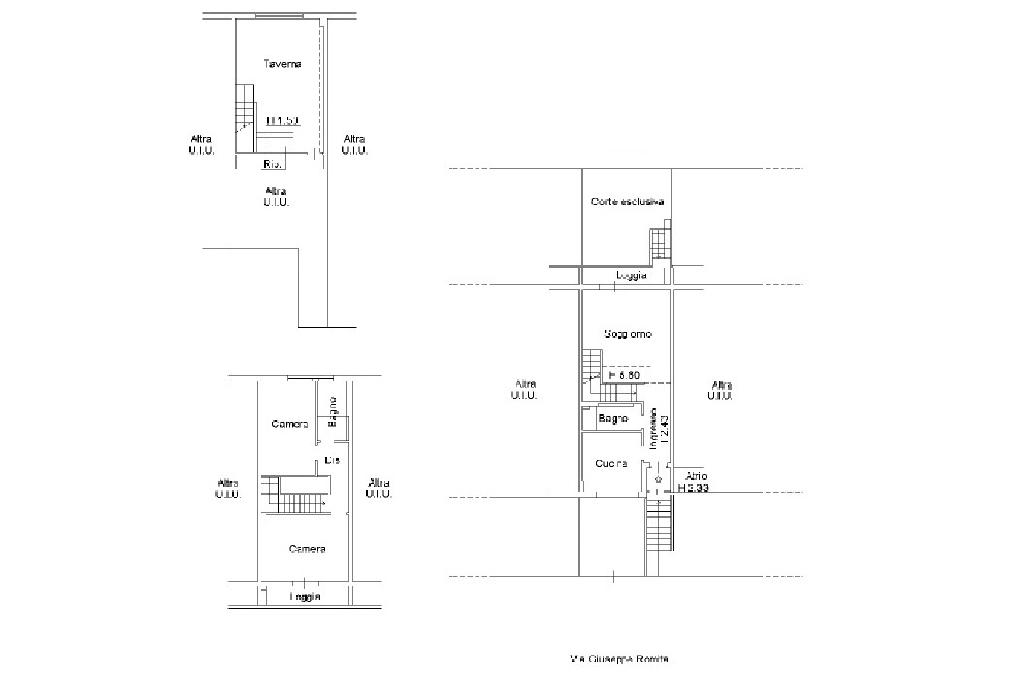
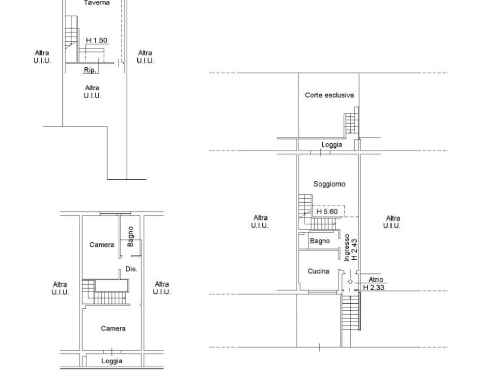
ZOLA PREDOSA: In zona residenziale, centrale e tranquilla, in prossimità del percorso ciclopedonale che attraversa il comune, comodi a tutti i servizi e le attività commerciali della zona, proponiamo elegante villetta a schiera disposta complessivamente su tre livelli.

Tramite scala d'ingresso indipendente si raggiunge la proprietà; al piano rialzato troviamo l'ingresso direttamente sulla zona living con la cucina abitabile, spazioso salone con accesso al cortile esterno privato (prevalentemente pavimentato), ed un bagno (dotato di impianto di ventilazione forzata), al primo piano si articola la zona notte, con due camere da letto (rispettivamente di 15 mq e 13 mq) di cui una collegata ad una loggia, ed il bagno principale finestrato. Al piano seminterrato completa la proprietà una taverna/sala hobby open-space di 30mq ed una spaziosa autorimessa di 23 mq.

Il riscaldamento all'interno dell'abitazione è alimentato da caldaia autonoma e le spese di gestione della corte condominiale risultano decisamente contenute.

La posizione centrale, il contesto residenziale signorile e tranquillo, la distribuzione lineare degli ambienti interni, il buono stato di mantenimento dell'immobile, l'assenza di spazi inutilizzati, la presenza del cortile privato, la possibilità di usufruire di un'ulteriore zona 'parcheggio' di fronte all'autorimessa, sono solo alcune delle qualità da scoprire dell'immobile.

Per ulteriori informazioni, visionare l'immobile e scoprire tutte le sue peculiarità siamo disponibili dalle 09:00 alle 13:00 e dalle 15:00 alle 20:00 presso la nostra sede in Via Risorgimento n°109 A/B a Zola Predosa. Per fissare una visita all'immobile ci contatti al 3466173196.

Mostra tutto

Nelle vicinanze

Trasporto pubblico Trasporto pubblico
Zola Centro
Zola Centro
690 m
Zola Chiesa
Zola Chiesa
1,3 Km
Pilastrino Di Zola
Pilastrino Di Zola
280 m
Zola Predosa Cimitero
Zola Predosa Cimitero
360 m
Pilastrino
Pilastrino
580 m
Ricariche auto elettriche Ricariche auto elettriche
Municipio di Zola Predosa BO
630 m
EnelX Fast IKEA Bologna
2,2 Km
Schiavina S.R.L. | EnelX
2,5 Km
Scuole Scuole
Scuola media Francesco Francia
710 m
Scuole
1,0 Km
Farmacia Farmacia
Faemacia Legnani
300 m
Ceretolo
2,8 Km
Supermercati Supermercati
iN's Mercato
490 m
Coop
1,1 Km
Supermercato Dimeglio
1,2 Km
DPiù
1,5 Km
Carrefour
2,1 Km
Negozi Negozi
Alcott
2,0 Km
Calzedonia
2,1 Km
Chemise
2,1 Km
Disponibile
2,1 Km
Pandora
2,1 Km
Bar Bar
Bar
290 m
Stefy
840 m
B+ Cafè
1,3 Km
Gideon
1,8 Km
Illy
2,1 Km
Ristoranti Ristoranti
LA FORCHETTA CURIOSA
300 m
Accademia der Cacio e Pepe
700 m
La Mandria
720 m
Masetti
900 m
Baita Mamma Rina
1,0 Km
Mostra tutto

Caratteristiche

Rif.:
61119972
Piano:
Su più livelli di 3
Totale piani:
3
Box:
1
Terrazzi:
1
Camere da letto:
2
Mostra tutto
Prezzo Prezzo
€ 365.000
Rata mutuo Rata mutuo
€ 1.687 / mese
Spese annue Spese annue
€ 450
Proponi il tuo prezzoProponi il tuo prezzo

Classe Energetica

F
F
F
F
F
F
F
F
F
EP globale non rinnovabile:
185.55 kW h/m² anno
EP globale rinnovabile:
185.55 kW h/m² anno
EP invernale del fabbricato:
EP estiva del fabbricato:
Anno di costruzione:
1980
Riscaldamento:
Autonomo
Tipo impianto:
A radiatori
Tipo alimentazione:
Metano

Ti interessa visionare l'immobile?

Fissa un appuntamento  Fissa un appuntamento

Richiedi informazioni

* Questi campi sono obbligatori

Calcola il tuo mutuo

Semplice e senza impegno
Anticipo

( % )
Mutuo

( % )

pochi semplici passi

inserisci i tuoi dati
Questionario completato
Grazie per aver richiesto un appuntamento senza impegno con un nostro Consulente del Credito e Assicurativo.

Hai inserito correttamente tutti i dati necessari e a breve riceverai una e-mail con un link da convalidare per inviare i tuoi dati.
Affiliato
Tecno Zola Srl
Via Risorgimento, 109/A-B 40069 Zola Predosa (BO)

Il nostro staff


  • Niccolò Spaccia
    Affiliato

  • Lorenzo Capuzzi
    Affiliato
Via Risorgimento, 109/A-B 40069 Zola Predosa (BO)
Zona: Zola Predosa-Riale-Ponte Ronca-San Martino in Casola
Mostra su mappa
Orari: da lunedì al venerdì dalle 9:00 - 13:00 e 15:00 - 20:00 sabato dalle 9:00 - 13:00
Affiliato
Tecno Zola Srl
Via Risorgimento, 109/A-B 40069 Zola Predosa (BO)

2025 Tecnocasa Franchising S.p.A. - P. IVA 08365160152 - Via Monte Bianco 60/A 20089 Rozzano (MI). Ogni agenzia ha un proprio titolare ed è autonoma. Privacy policy | Policy utilizzo | Cookie policy